Startseite
Profil
Projekte
Büro & Verwaltung
Bildung & Gesundheit
Industrie & Gewerbe
Kultur & Sonderbau
Wohnen
Einfamilienhaus
Mehrfamilienhaus
Projektmanagement
Kontakt
Links
Impressum
Wohnen
7
6
Haus 5
4
3
2
1
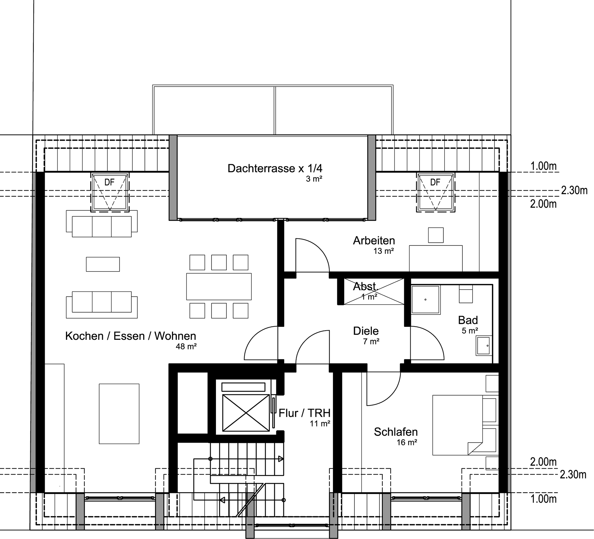
Schließen einer Baulücke durch ein Mehrfamilienwohnhaus mit Studentenwohnungen
Bauherr: S-Immo
Baujahr: 2013
Fläche: 626 m² Gesamtwohnfläche
Leistungsphasen: 1-2
Besonderheiten: Projektentwicklung